Projects listed are a combination of work done by Erika Berg at and before Bada Design. 

alys beach, fl

New concept high end restaurant test fit.

atlantic city, nj

High profile chef restaurant. Completed 2022.

AUSTIN, TX

New concept fast casual drive thru test fit.

austin, tx

American grille restaurant. Completed 2022.

BUFFALO, NY

Entertainment restaurant renovation. Completed 2024.

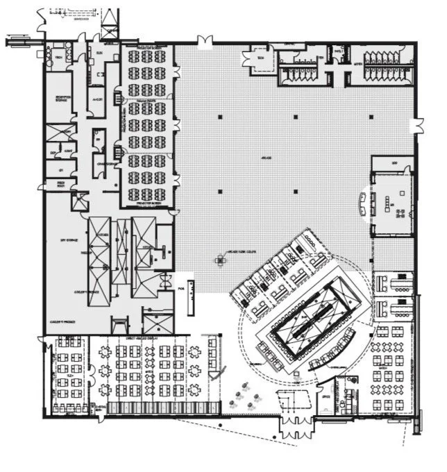
CARLSBAD, CA

Escape room. Completed 2024.

CEDAR PARK, TX

American grille restaurant test fit.

CHICAGO, IL

High profile chef fine casual Mexican restaurant test fit.

CHICAGO, IL

Neighborhood bar. Coming soon.

CHICAGO, IL

Neighborhood bar. Opened 2023.

CLARKSVILLE, TN

Entertainment restaurant. Completed 2024.

COLUMBIA, SC

Entertainment restaurant renovation. Completed 2024.

CRUISE SHIP

Art Gallery test fit on large cruise ship.

CRUISE SHIP

3 retail stores on large cruise ship. Set sail 2024.

CRUISE SHIP

2 retail stores on large cruise ship. Set sail 2024.

CRUISE SHIP

Breakfast and lunch cafe on large cruise ship. Set sail 2024.

cruise ship

Pizzeria and Deli fast casual restaurants on large cruise ship. Set sail 2022.

cruise ship

Interior and exterior bar on large cruise ship. Set sail 2022.

cruise ship

Retail renovation on small cruise ship. Completed 2021.

DENVER, CO

New concept high end restaurant test fit.

DORAL, FL

Escape room. Coming soon.

EULESS, TX

Entertainment restaurant renovation. Completed 2024.

GAITHERSBURG, MD

Entertainment restaurant renovation. Completed 2024.

HARRISBURG, PA

Entertainment restaurant renovation. Completed 2024.

HOLLYWOOD, CA

Escape room. Coming soon.

HOUSTON, TX

New concept high end restaurant test fit.

JOLIET, IL

High profile chef fine casual Mexican restaurant. Completed 2024.

HOUSTON, TX

American grille restaurant test fit.

JERSEY CITY, NJ

High end steakhouse restaurant test fit.

KENNEWICK, WA

Entertainment restaurant renovation test fit.

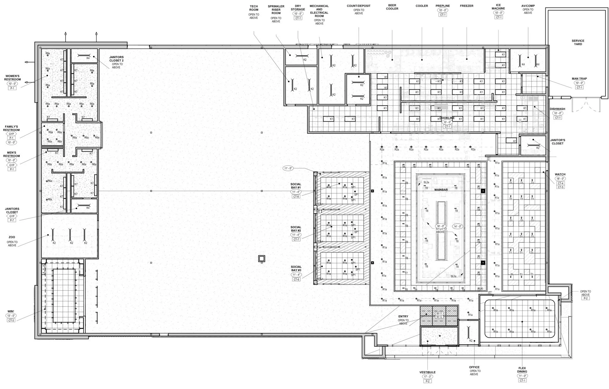
KILLEEN, TX

Entertainment restaurant. Completed 2024.

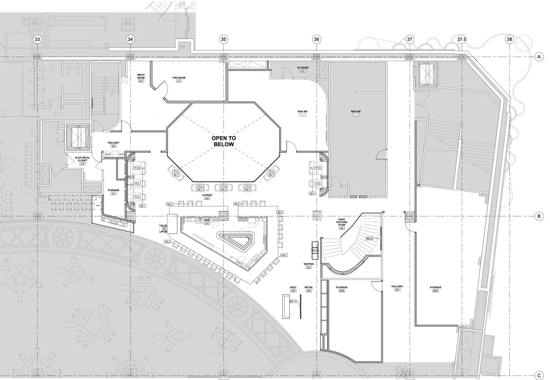
LAS VEGAS, NV

New concept high end Japanese restaurant. In progress.

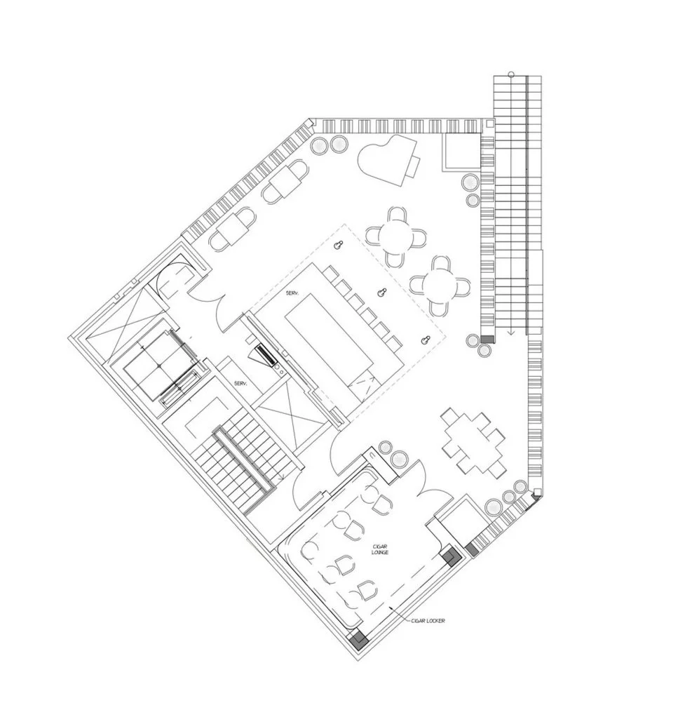
LAS VEGAS, NV

High end steakhouse restaurant. Coming soon.

LYNNWOOD, WA

Escape room test fit.

MCALLEN, TX

Entertainment restaurant renovation. Completed 2024.

MIDTOWN, NYC

Hotel restaurant. Completed 2019.

NOMAD, NYC

High profile chef fine casual Mexican restaurant. Completed 2021.

NORTHRIDGE, CA

Escape room. Completed 2023.

OLD ORCHARD, IL

High profile chef fine casual Mexican restaurant. Completed 2024.

ONTARIO, CA

Entertainment restaurant renovation. Coming soon.

PLANTATION, FL

Escape room. Coming soon.

REDONDO BEACH, CA

Escape room test fit.

RIYADH, SAUDI ARABIA

High end steakhouse restaurant. Project terminated.

SALEM, NH

High end steakhouse restaurant. Completed 2024.

SAN ANTONIO, TX

New concept high end restaurant test fit.

SAN FRANCISCO, CA

Escape room. Completed 2023.

SAN RAMON, CA

Escape room. Completed 2023.

THOUSAND OAKS, CA

Escape room test fit.

TIMES SQUARE, NYC

High profile chef fine casual Mexican restaurant. Completed 2023.

TUSCALOOSA, AL

American grille restaurant test fit.